3 bedroom
1 bathroom
818 sq ft (75 .99 sq m)
2 receptions
3 bedroom
1 bathroom
818 sq ft (75 .99 sq m)
2 receptions
Situated at the end of a quiet cul-de-sac on Rhodfa Maes Hir in Rhyl, this well-presented three-bedroom semi-detached home enjoys a peaceful setting with attractive views across open fields and towards the surrounding hillsides. Despite its tranquil position, the property remains conveniently located for local amenities and transport links.
The accommodation has been thoughtfully improved by the current owners, including a recently fitted kitchen in 2024, offering a stylish and functional space ideal for both everyday living and entertaining. To the front of the property, the lounge provides a bright and comfortable setting to relax, while a useful utility room, accessed from the rear garden, adds practicality for modern family life.
A key feature of the home is the converted garage, now providing a versatile second reception room. This flexible space could easily serve as a home office, playroom, or even an additional ground floor bedroom, depending on individual needs.
To the first floor are three well-proportioned bedrooms, each offering space for storage, along with a family bathroom. Outside, the property benefits from neat, manageable gardens, perfect for enjoying the outdoors with minimal upkeep.
This property would make an ideal purchase for first-time buyers, offering a well-balanced combination of modern updates, flexible living space, and a desirable location.
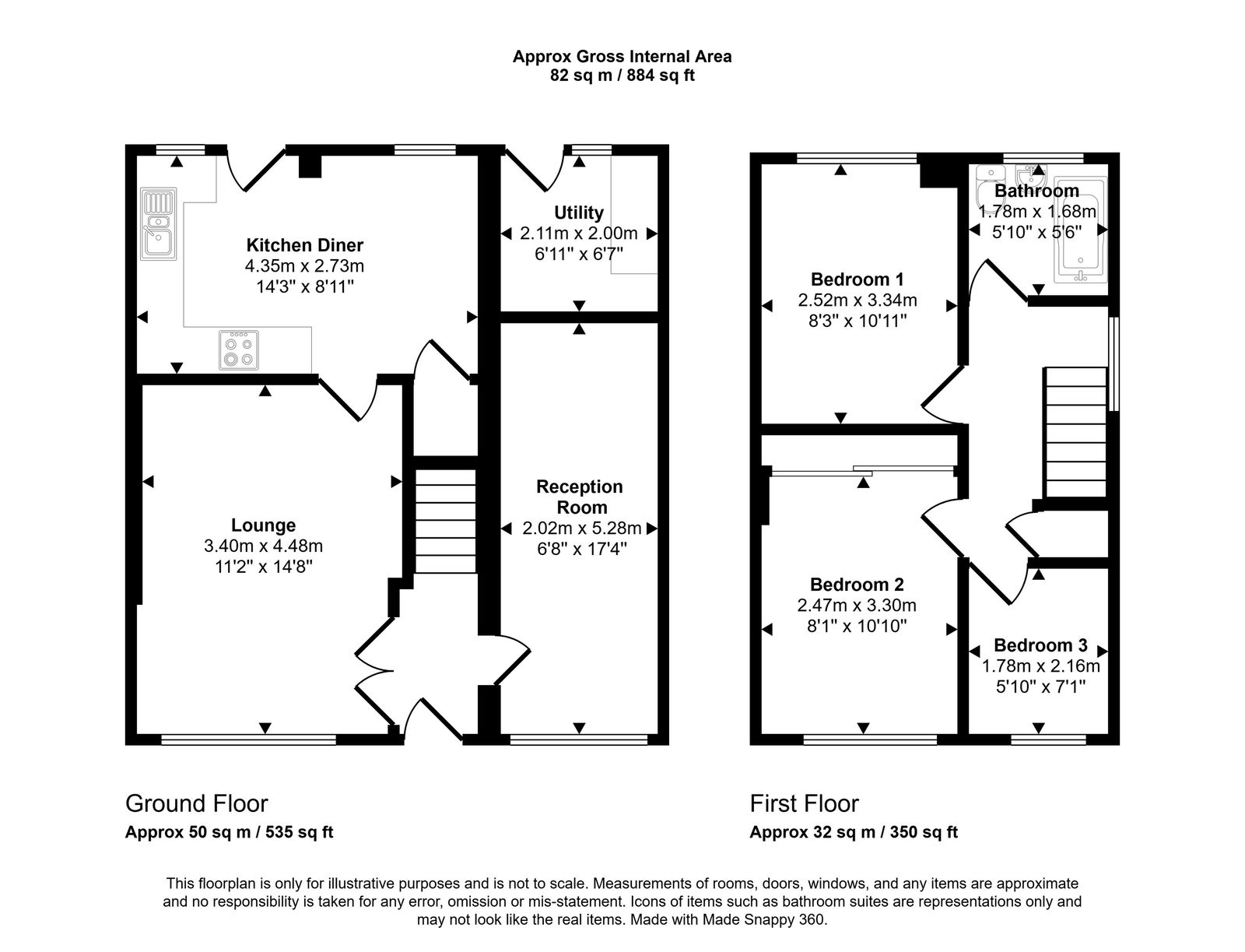
Room Measurements:
Lounge: 4.48m x 3.40m
Kitchen: 4.35m x 2.73m
2nd Sitting Room/ Reception Room: 5.28m x 2.02m
Utility Room: 2.00m x 2.11m
Bedroom 1: 3.34m x 2.52m
Bedroom 2: 3.30m x 2.47m
Bedroom 3: 2.16m x 1.78m
Bathroom: 1.88m x 1.78m
Tenure: Freehold
Services: Mains gas, electric, water and drainage.
Council Tax Band: C
Boiler info: approx. 3 years old.
Broadband: Connected
Garage conversion was carried out prior to current ownership.










