4 bedroom
3 bathroom
1667 sq ft (154 .87 sq m)
2 receptions
4 bedroom
3 bathroom
1667 sq ft (154 .87 sq m)
2 receptions
Wake up to sea air, coastal walks and the convenience of town living all just moments from your door. Ideally positioned within a short stroll of the seafront, local amenities and Prestatyn town centre, this attractive three-bedroom detached family home offers the perfect balance of relaxed coastal living and everyday practicality.
The accommodation is well-proportioned and thoughtfully arranged, featuring two inviting reception rooms ideal for both relaxed family time and entertaining, alongside a fitted kitchen and separate utility room that cater effortlessly to modern life.
Upstairs, the home provides three comfortable bedrooms served by two bathrooms, creating a calm and functional layout for families or those seeking space to grow.
Externally, the property continues to impress with a double garage, half of which has been cleverly converted and is currently used as an additional bedroom with an ensuite shower room—perfect for guests returning from the beach, multigenerational living, or a peaceful home workspace (subject to any necessary consents).
A private driveway provides off-road parking, while the overall setting makes this a superb opportunity to enjoy fresh sea air, scenic walks and a laid-back coastal lifestyle, all within easy reach of shops, cafés and transport links.
A wonderful family home in a highly sought-after coastal location.
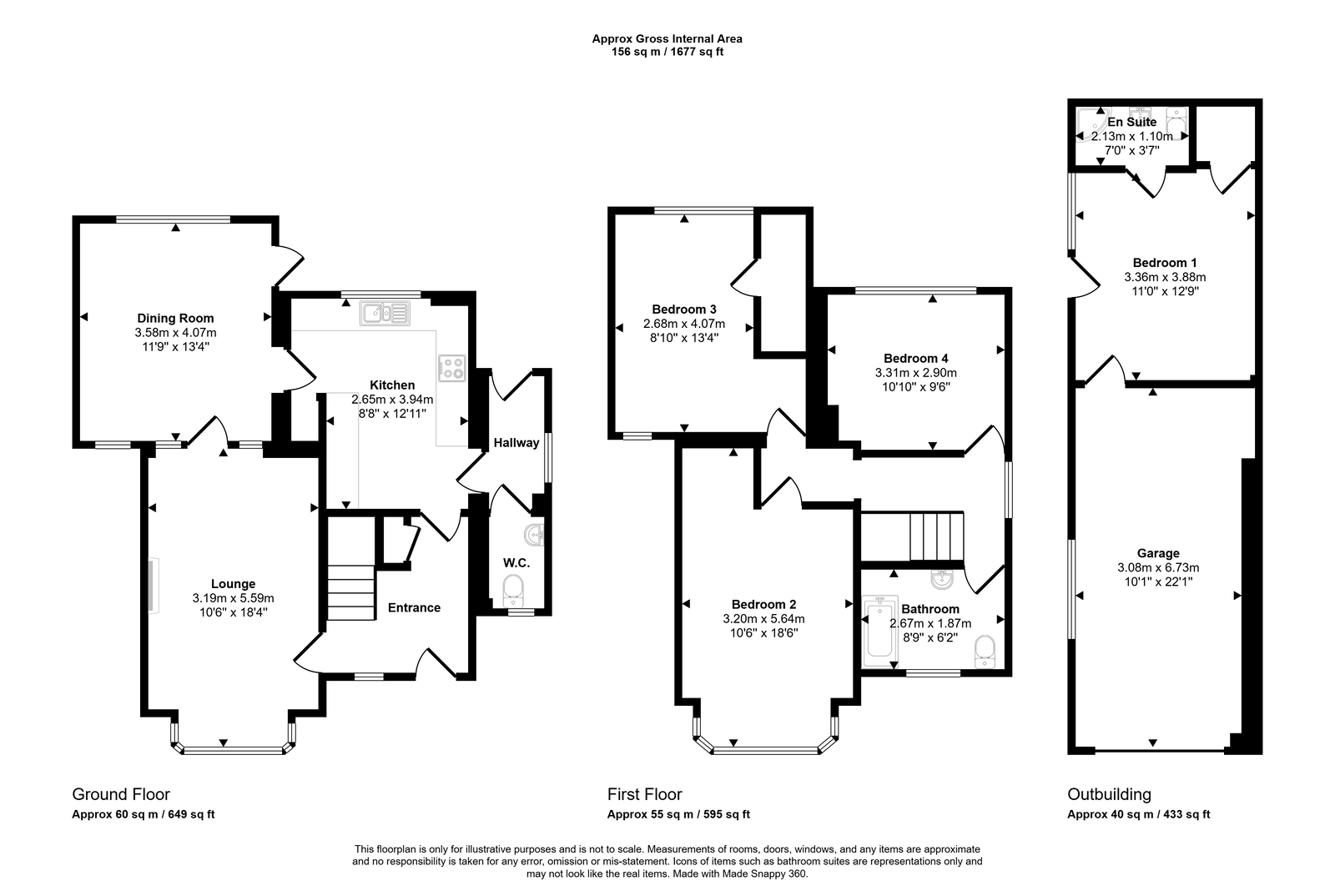
Room Measurements
Hall
Lounge 3.19m x 5.59m (10'6'' x 18'4'')
Kitchen 2.65m x 3.94m (8'8'' x 12'11'')
Dining Room 3.58m x 4.07m (11'9'' x 13'4'')
Hallway
W.C
Bedroom One 3.36m x 3.88m (11'0'' x 12'9'')
Ensuite 2.13m x 1.10m (7'0'' x 3'7'')
Bedroom Two 3.20mx 5.64m (10'8'' x 18'6'')
Bedroom Three 2.68m x 4.07m (8'10'' x 13'4'')
Bedroom Four 3.31m x 2.90m (10'10'' x 9'6'')
Garage 3.06m x 6.73m (10'1'' x 22'1'')
Information
Tenure Freehold
Loft Insulated
Services mains water, drainage, gas and electric
Council Denbighshire County Council Band D
Construction Standard
Boiler Info: Age: Unknown. Located in the kitchen. Make: Ideal.
EPC D












