4 bedroom
2 bathroom
8611 sq ft (799 .99 sq m)
2 receptions
4 bedroom
2 bathroom
8611 sq ft (799 .99 sq m)
2 receptions
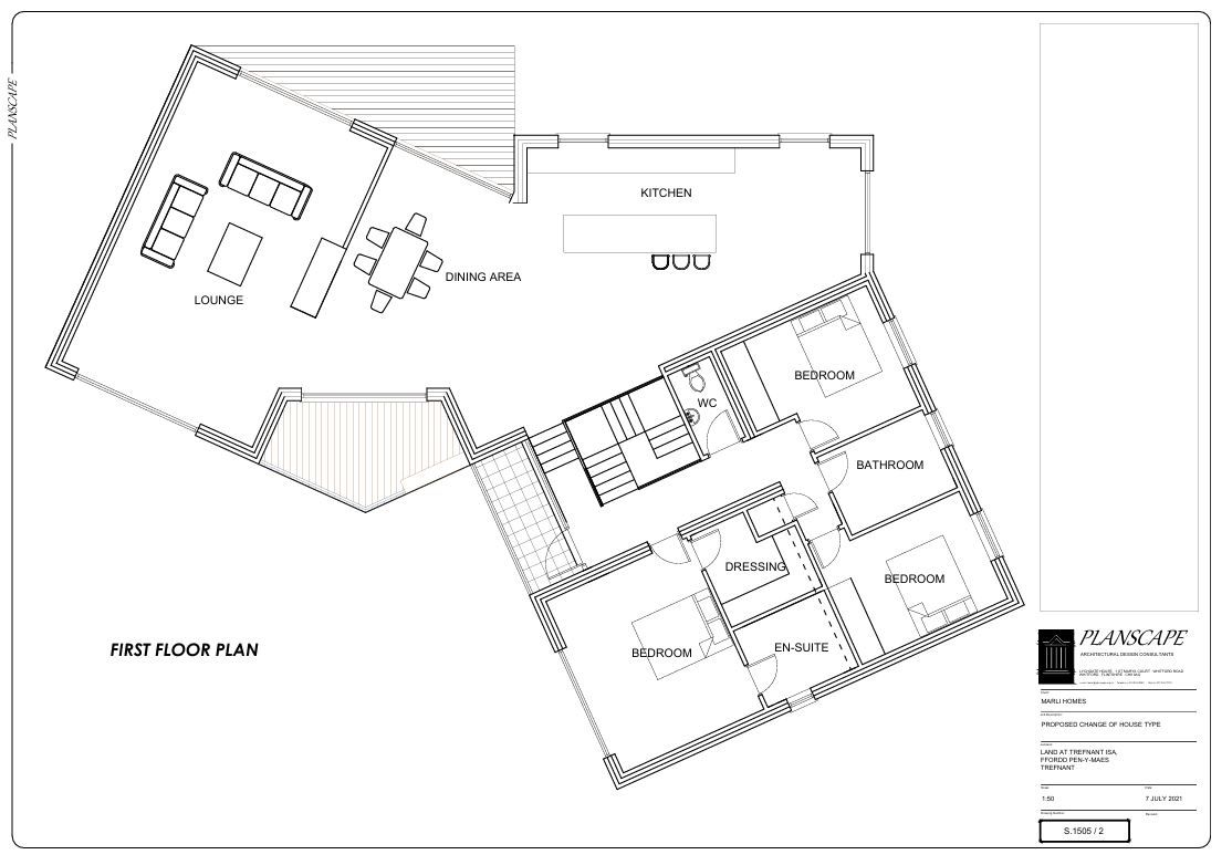
This exceptional plot of land, located in the charming village of Trefnant, presents a unique opportunity for prospective buyers. Set in a peaceful, scenic area, this site comes with full planning permission for a
stunning 4-bedroom house, making it the perfect chance to create your dream home in a sought-after semi-rural setting.
The proposed design includes spacious living areas, modern amenities, and carefully considered architectural features to maximize both style and functionality.
For those unfamiliar with the building process, the current owner is willing to offer assistance and guidance on getting started, making this an ideal opportunity for first-time builders or those looking for a
helping hand with the initial stages of the project.
Trefnant is a delightful village, renowned for its close-knit community, local amenities, and easy access to both the North Wales coastline and the nearby market towns of Denbigh and St Asaph. This plot is
ideally situated for those seeking a semi-rural lifestyle without sacrificing convenience, with excellent transport links & amenities not too far away.
Don’t miss this rare chance to build a bespoke home in a picturesque village location! Contact us today for more information.
Plot Size: 0.08 Hectares
Full plans & further information available on requested. Please contact the office to arrangement an appointment.








