2 bedroom
2 bathroom
603 sq ft (56 .02 sq m)
1 reception
2 bedroom
2 bathroom
603 sq ft (56 .02 sq m)
1 reception
Well-Maintained 2-Bedroom Bungalow with Excellent Outdoor Extras – Towyn
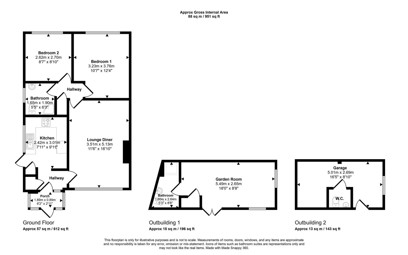
Situated in a quiet and popular residential area of Towyn, this well-maintained two-bedroom bungalow offers comfortable, easy living with the bonus of some fantastic outdoor features.
The layout includes an entrance porch leading into a modern fitted kitchen on the left, which was updated seven years ago. To the front of the property is a spacious lounge with room for dining. A small inner hallway connects to two bedrooms and a well-presented shower room, making the home both practical and easy to navigate.
To the rear, the garden has been designed with low maintenance in mind, featuring a neat seating area that’s ideal for relaxing or hosting. Beyond this lies a standout feature: a garden room with its own shower room, perfect for use as a home office, hobby space, or occasional guest room. There is also a brick-built store and a garage, currently used as a hobbies room, which also benefits from a WC.
At the front of the property, there is ample parking on the driveway. The home is fully double glazed and gas central heated, with a new boiler installed five years ago and updated wiring completed seven years ago, offering peace of mind and reliable efficiency.
This is a great opportunity to own a well-cared-for home in a peaceful part of Towyn, with flexible spaces both inside and out. Early viewing is recommended to fully appreciate everything on offer.
Room Measurements:
Porch: 1.89m x 0.89m
Lounge/Diner: 3.51m x .13m
Kitchen: 3.01m x 2.42m
Bedroom One: 3.76m x 3.23m
Bedroom Two: 2.70m x 2.62m
Shower Room: 1.90m x 1.65m
Garden Room: 5.49m x 2.65m
Bathroom: 2.64m x 1.60m
Garage: 5.01m x 2.69m max.
Tenure: Freehold
Services: Mains gas, electric and drainage. Water is metered.
Smart meters for gas and electric.
Boiler: located in the porch. Installed 5 years ago
Broadband: Yes connected to the property.
Parking: For 3-4 cars
Council Tax Band: C. Conwy County Borough Council
No restrictions or rights of way the owner is aware of.









