2 bedroom
1 bathroom
2 receptions
2 bedroom
1 bathroom
2 receptions
Offered for sale is this well-located freehold semi-detached house, situated in a popular and established residential area of Prestatyn.
The property provided two-bedrooms, and would appeal to a wide range of buyers including families, first-time purchasers and investors alike.
Conveniently positioned, the property offers easy access to local schools, shops, transport links and Prestatyn town centre, as well as the wider North Wales coast.
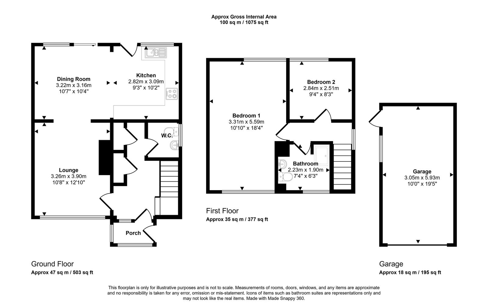
Spacious hallway with downstairs W.C. The fitted kitchen is modern and leads onto the coinvent open plan dining room and on to the lounge. Upstairs having the family bathroom and two good sized bedrooms.
The garden is lawned with a patio area and is enclosed.
Driveway and a detached garage.
Room measurements
Porch
W.C
Lounge 3.26m x 3.90m (10'8'' x 12'10'')
Dining Room 3.22m x 3.16m (10'7'' x 10'4'')
Kitchen 2.82m x 3.09m (9'3'' x 10'2'')
Bedroom One 3.31m x 5.59m (10'10'' x 18'4'')
Bedroom Two 2.84m x 2.51m (9'4'' x 8'3'')
Bathroom 2.23m x 1.90m (7'4'' x 6'3'')
Garage 3.05m x 5.93m (10'0'' x 19'5'')
Information
Tenure Freehold
Construction Standard
Services Mains water, drainage, gas and electric
Boiler Combi boiler located in the kitchen fitted 2021
Council Tax Denbighshire County Council Band C
Loft Not boarded and no ladder
EPC - C









