3 bedroom
1 bathroom
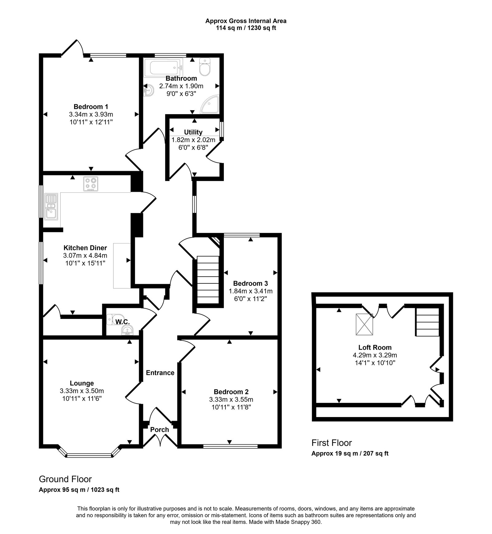
1230 sq ft (114 .27 sq m)
2 receptions
3 bedroom
1 bathroom
1230 sq ft (114 .27 sq m)
2 receptions
A deceptively spacious and highly versatile home with far more than first meets the eye.
This extended three-bedroom detached bungalow offers an impressive amount of flexible living space, making it ideal for a wide range of buyers including families, downsizers, or those seeking multi-functional accommodation.
Step inside via the entrance porch into an entrance hall. To the left, you’ll find the formal lounge, a comfortable and inviting space perfect for relaxing. To the right sits a generous double bedroom, currently utilised as a dining room, offering excellent versatility depending on your needs. Adjacent to this is the third bedroom, while a conveniently located WC sits opposite.
An inner hallway leads toward the rear of the property, where there is a useful additional area currently set up with space for a desk—ideal for home working. From here, a door provides access to a fixed staircase leading to the loft room, a fantastic bonus space suitable for storage or potential further use (subject to any necessary consents).
Continuing through, the rear of the bungalow hosts a practical utility room, followed by the main bathroom. A further double bedroom is positioned at the back of the property, enjoying a quiet outlook, while the kitchen with dining area completes the internal layout.
Externally, the property continues to impress. The rear garden is private and well-maintained, featuring a ramp leading up to the rear bedroom—an excellent addition for wheelchair access or those with mobility needs. There is also a garage providing additional storage. To the front, the property benefits from an attractive frontage and driveway parking.
This is a home that truly must be viewed to be fully appreciated—offering generous space, flexible living options, and fantastic potential to tailor to your own requirements.
Room Measurements:
Lounge: 3.50m x 3.33m
Kitchen/Diner: 4.84m x 3.07m
Bedroom 1: 3.93m x 3.34m
Bedroom 2: 3.55m x 3.33m
Bedroom 3: 3.41m x 1.84m
Bathroom: 2.74m x 1.90m
Utility Room: 2.02m x 1.82m
Loft Room: 4.29m x 3.29m
Tenure: Freehold
Services: Mains gas, electric & drainage. Water is metered.
Boiler: Located in the cupboard in the kitchen. Age: Unknown.
Eaves Storage. Loft is full boarded & carpeted.
Property Age: 1950's
Council Tax Band











